Stands découverts (public)
L'idée de départ est de faire des stands à ciel ouvert , mais protégés par des toits en plexiglas pour bien voir la décoration des boxes avec gradins, podium et poste de controle.
j'ai donc tracé et réalisé ce bâtiment qui fait 1M10 de long soit l'équivalent d'environ 3 droites std.
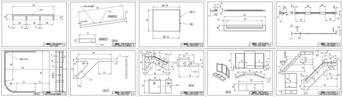
Le plan 3D pour le projet

Les plans pour découpe de tous les débits dans du carton plume ep:5



Début de la construction avec mise en peinture
Pour les barreaux et garde-corps, j'ai récupéré les ronds dans un vieux morceau de sèche linge facile à tordre et à peindre
La construction avance

Tous les débits prédécoupés s'assemblent parfaitement
Réalisation du poste de contrôle

Présentation des figurines
(pas mal de boulot à peindre tout ça )




























